首页
联系我们
关于我们
产品展示
资讯动态
资质证书
联系我们
公司概况
企业文化
公司荣誉
联系我们
科技求发展,诚信求信誉,服务求品牌
精益求精、不断创新、创造出优良品质
箱式变电站系列
电缆分接箱系列
低压成套系列
高压成套系列
不锈钢箱系列
企业新闻
行业动态
企业新闻
行业动态
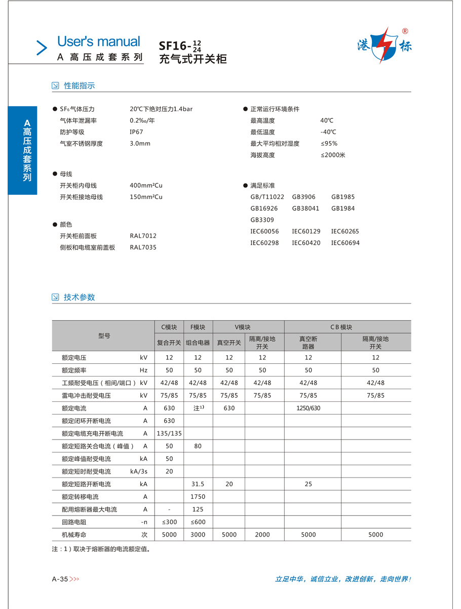
SF16-12/24充气式开关柜
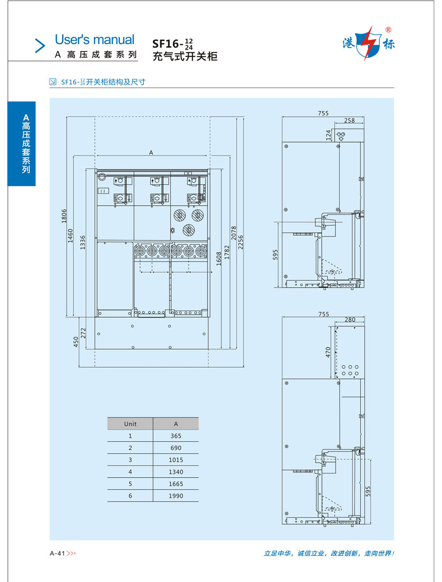
SF16-12/24充气式开关柜
Copyright 昆明港标电器有限公司 All Rights Reserved
技术支持:鼎诺传媒
关于我们
联系我们
关闭
热线电话:
400-0727-088
QQ客服
在线客服